Oficina se alquila, Budapest XI distrito

Página principal » Oficina se alquila, Budapest XI distrito » Oficina se alquila, Budapest XI distrito

350 000 Ft

€928
Datos del anunciante

Agatity Roland

Escribir mensaje
El mensaje deberá contener como mínimo 10 letras.
Descripción

Texto traducido

Texto original
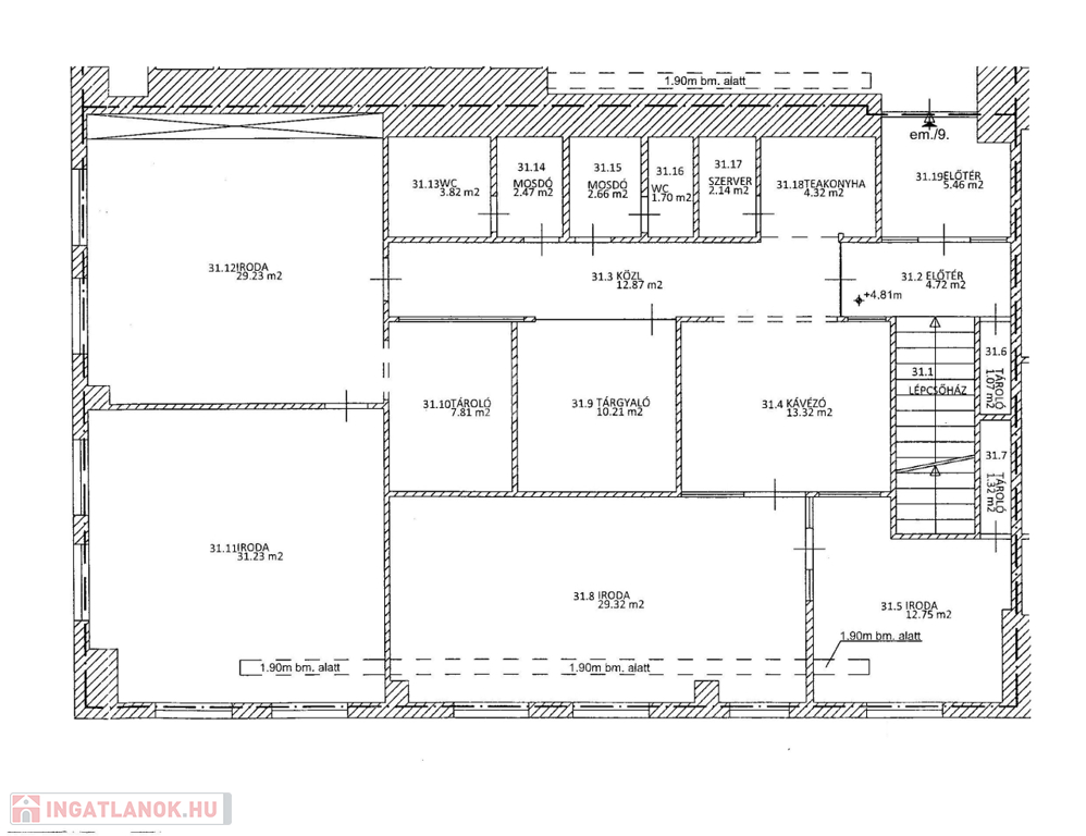
Budapest XI. kerület, Albertfalván, a budafoki út közelében, ipari területen lévő 96 m2-es felújított irodahelyiség kiadó!
Az ingatlan rendezett jogi háttérrel (társasház önálló helyrajzi számú irodákkal, saját mérők), délkeleti tájolással és saját parkolóval rendelkezik. Elsőrendű autós és teherautós közlekedési kapcsolat. 2020-ban felújításon esett át (vezetékek, burkolatok, nyílászárók, beépített konyha) riasztóval és valamennyi helyisége klímával van felszerelve. Közlekedési szempontból az iroda páratlan lehetőségeket nyújt. Az MO körgyűrű csomópontja mindössze 2 km-re, a 6-os főút 1000 méterre található, míg az M1 és M7 közös bevezető szakasza 5 km-re helyezkedik el. A Rákóczi híd budai hídfője 3 km-re van, és a repülőtér autóval 50 perc alatt elérhető. A közlekedés még egyszerűbbé válik, hiszen a 33,133E buszok az épület előtt állnak meg, míg további busz- és villamosjáratok mindössze 5-10 perces sétával elérhetők.

Datos de (tipo)

no está facilitado

Oficina

96 metro cuadrado

no está facilitado

no está facilitado

Mapa