Inmueble industrial se alquila, Székesfehérvár

Página principal » Inmueble industrial se alquila, Székesfehérvár » Inmueble industrial se alquila, Székesfehérvár

1 316 000 Ft

€3 428
Datos del anunciante

Märcz Roland

Escribir mensaje
El mensaje deberá contener como mínimo 10 letras.
Descripción

Texto traducido

Texto original
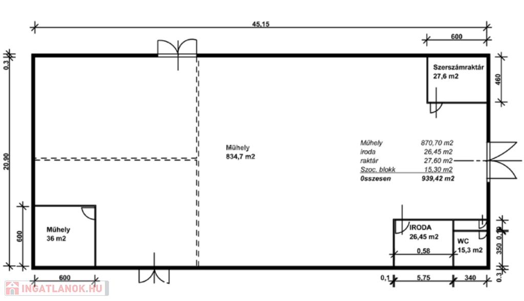
Bip-003644. Ipari Parkban az M7-es autópálya közelében 940m2 alapterületű műhely kiadó!

Jellemzők:
‣ ~4m belmagasság
‣ 3db szintbeli ipari kapu (2,9m x 3,6m)
‣ áramkapacitás: 3x100A
‣ 24 órás porta és biztonsági szolgálat
‣ fűtés gázüzemű sugárzókkal megoldott
‣ közművek önállóan mérhetőek


Bérleti díj: 1400+ÁFA/m2/hó +rezsi +kaució



Ha felkeltette érdeklődését, hívja irodánkat bizalommal, éljen ingyenes, személyre szabott hitelügyintézés szolgáltatásunkkal. Segítünk továbbá adásvételhez szükséges ügyvédi közreműködésben, energetikai tanúsítvány, valamint értékbecslés elkészítésében.

For English details please send us a message or an e-mail, thank you.

Datos de (tipo)

normal

Otro

no está facilitado

940 metro cuadrado

no está facilitado

Mapa