Casa se vende/se alquila, Székesfehérvár

Página principal » Casa se vende/se alquila, Székesfehérvár » Casa se vende/se alquila, Székesfehérvár

71 990 000 Ft

€190 778
Datos del anunciante

Németh Zoltán

Escribir mensaje
El mensaje deberá contener como mínimo 10 letras.
Descripción

Texto traducido

Texto original
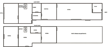
Tágas otthon kertvárosi nyugalomban

Székesfehérvár közkedvelt, csendes részén kínáljuk megvételre ezt a kétszintes, tégla családi házat, amely elosztásának és korszerűsített állapotának köszönhetően tökéletes választás lehet akár nagyobb család számára is.

A földszinten és az emeleten összesen 4 szoba, 2 nappali, egy napozóterasz, 2 fürdőszoba és egy kényelmes méretű, gépesített konyha kapott helyet, így minden családtagnak jut saját tér, miközben a közös együttlétekhez is ideális helyiségek állnak rendelkezésre. A 327 m²-es udvar pont akkora, hogy a gyerekek játszhassanak, a felnőttek pedig kertészkedhessenek vagy pihenhessenek – mindezt anélkül, hogy a fenntartás túl sok időt venne igénybe. A kertben egy praktikus udvari faház is helyet kapott, ami kiváló tárolási lehetőséget kínál.

Az ingatlant az elmúlt években több lépésben korszerűsítették. 2007-ben megújult a teljes víz- és villanyhálózat, új burkolatokat és modern, gépesített konyhabútort kapott a ház. 2023-ban a tetőszerkezet cseréje is megtörtént és a 15 cm-es külső szigetelés is teljeskörűen megvalósult. A háromrétegű, termoüveges fa nyílászárók és a korszerű fűtésmegoldások – gáz-cirkó a földszinten, elektromos panelek és hűtő-fűtő klímák az emeleten – tovább növelik a lakókomfortot.

A parkolás az utcán, díjmentesen megoldható, a környék pedig csendes, családbarát és kertvárosias hangulatú.
A belváros nemcsak autóval, de tömegközlekedéssel is gyorsan elérhető, így a nyugodt otthon és a városi élet kényelme egyszerre elérhető.

Irányár: 71,99 M

Bővebb információért keressen minket bizalommal, segítünk megtalálni új otthonát.

Datos de (tipo)

136 metro cuadrado

327 metro cuadrado

Bueno/a

Casa unifamiliar

Ladrillo

Caldera de gas

Gas

Con doble confort

De 21-50 años

Interior

Planta baja + ático

No amueblado/a

Mapa