Casa se vende/se alquila, Kazár

Página principal » Casa se vende/se alquila, Kazár » Casa se vende/se alquila, Kazár

11 900 000 Ft

€30 526
Datos del anunciante

Butkai Ottó

Escribir mensaje
El mensaje deberá contener como mínimo 10 letras.
Descripción

Texto traducido

Texto original
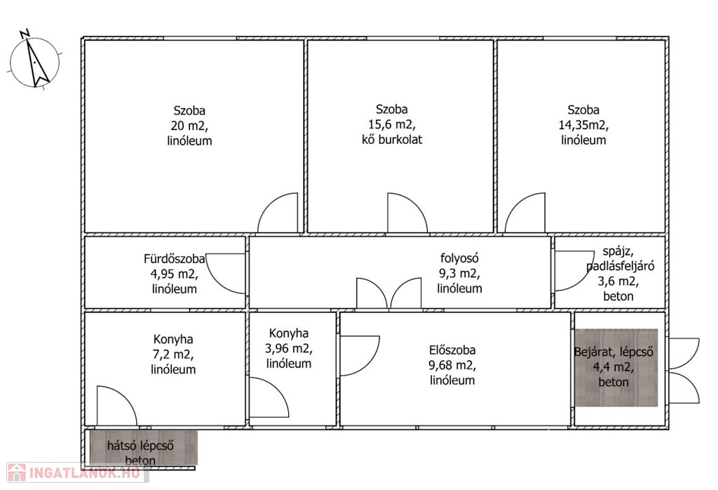
Most alkalmi áron eladó Kazáron, egy nagyon jó helyen lévő, nagy, lapos telekkel rendelkező családi ház. A ház régóta nem lakott, kívül és belül felújításra szorul, ezért is ilyen kedvező az ára. Az alapterülete 93 négyzetméter, azaz a falusi CSOK támogatás igényelhető rá, akár három gyermekkel is, így csekély saját erővel is megszerezhető! Az ingatlan összközműves, vezetékes gáz, elektromos áram, és vezetékes víz bekötéssel rendelkezik, csatlakozik a szennyvízhálózatra, továbbá elérhető az optikai Internet hálózat is. jelenleg gázkonvektoros fűtésű, és a melegvíz ellátását is átfolyós, gázüzemű vízmelegítő szolgáltatja. A szobái tágasak. A tető ácsolata új, a héjazat sajnos javításra szorul, emiatt több helyen beázási foltok vannak a mennyezeten. Az udvarra gépjárművel is be lehet állni. A ház alatt két nagy pince is van. Egy alapos felújítás után a ház a jelenlegi vételárának két-háromszorosát is megéri, mert az alapterülete nagy, a hozzá tartozó telek pedig kiváló adottságú. Aki nem ijed meg egy kis munkától, annak kiváló lehetőség, akár saját otthon, akár befektetés céljára!
Amennyiben felkeltettem az érdeklődését, hívjon a 36 70 423 1304-es telefonszámon!
Kazár az egyik leghíresebb település Nógrád Vármegyében. Az évenkét rendezett Laskafesztivál az egész országból vonzza a közönséget. Nagy, jó hírű iskolája van, szép faluháza, gazdag múltja, valamint itt található az országos hírű Riolittufa is, számtalan egyéb látnivaló mellett.
A megyeszékhely mindössze tizenöt perc alatt elérhető autóval, de rendszeres autóbuszjárat is közlekedik a település és Salgótarján között.
(További képekért és információkért kérem hívjon!)

Datos de (tipo)

93 metro cuadrado

1 300 metro cuadrado

Por renovar

Casa unifamiliar

Ladrillo

Calefacción con convectores

no está facilitado

No está facilitado

No está facilitado

no está facilitado

no está facilitado

no está facilitado