Texto traducido
Texto original
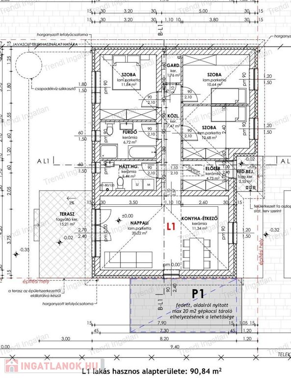
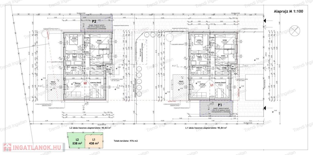
Győrságon új építésű 90,84 nm-es nappali + 3 szobás ikerház 438 nm-es telekrészen eladó. A két ház önállóan megközelíthető, nincs közös fal.
A remek elosztású házban amerikai konyhás nappali, 3 szoba, fürdőszoba, háztartási helyiség, előtér, gardrób, közlekedő található. A nappaliból 15,21 nm-es terasz nyílik.
A ház 30-as falazóelemből, 15 cm-es homlokzati szigeteléssel, 3 rétegű műanyag nyílászárókkal kerül kivitelezésre. Az ingatlan fűtését és melegvíz ellátását hőszivattyú biztosítja padlófűtéssel. Felár ellenében kerti csap, klíma- és riasztó előkészítés, terasz, térkövezés kérhető.
Fűtéskész átadás várható ideje: 2026 ősz
Az ingatlan fűtéskész ára: 59.900.000 Ft. Kulcsrakész befejezés kérhető.
Az ár tartalmazza a telek árát is.
Bővebb információkért forduljon hozzám bizalommal.
Hétköznap és hétvégén is várom hívását!
Díjmentes, bankfüggetlen hitelügyintézéssel állunk rendelkezésére.
A hirdetésben feltüntetett képek illusztrációk.
91 metro cuadrado
438 metro cuadrado
Excelente
Casas pareadas
Ladrillo
no está facilitado
no está facilitado
Con todo tipo de comodidades
Recién construido/a
no está facilitado
no está facilitado
no está facilitado
Busque casa, piso, oficina, garaje, parcela o cualquier inmueble en nuestra base de datos sin ningún problema.
The Inmobiliaria.co.hu is a member of the Real Estate Group.
Inmuebles que se venden en Hungría - Inmobiliaria.co.hu © 2025 Todos los derechos reservados