Casa se vende/se alquila, Gödöllő

Página principal » Casa se vende/se alquila, Gödöllő » Casa se vende/se alquila, Gödöllő

120 000 000 Ft

€316 364
Datos del anunciante

Ignát Arnold

Escribir mensaje
El mensaje deberá contener como mínimo 10 letras.
Descripción

Texto traducido

Texto original
Új építésű ikerház eladó Gödöllőn — modern kialakítás, kiváló helyszín, 2025-ös átadás

Gödöllő belvárosától néhány perc sétára, rendezett, aszfaltozott utcában kínálunk eladásra egy 2025-ben megépülő, modern ikerházat, saját lekerített 300 m²-es telek­résszel.
Az ingatlan tervezésekor a praktikus elrendezés, az energiahatékonyság és a kényelmes, családbarát térkialakítás kapott hangsúlyt.

A földszintes kialakítás mellett igény szerint belső kétszintes változatban is megvalósítható, így a leendő tulajdonos saját igényeire szabhatja az otthonát.

Főbb jellemzők:
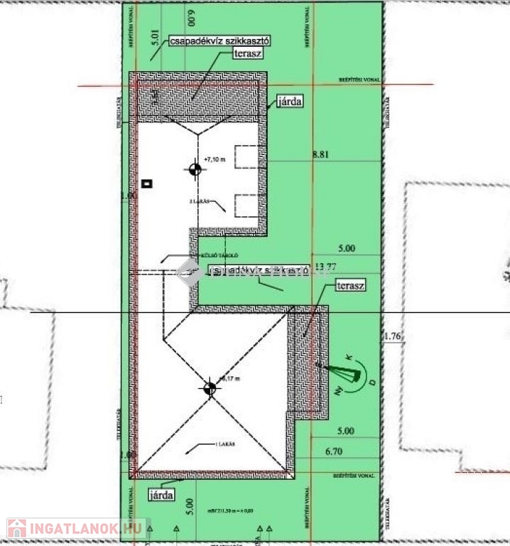
- Alapterület: 78 m² + 21 m² terasz
- Saját, elkerített telekrész: 300 m²
- Amerikai konyhás nappali
- 3 hálószoba
- Fürdőszoba + külön WC
- Gardrób és háztartási helyiség
- Nagy méretű nyitott terasz
- Udvari parkolás

Műszaki felszereltség:
- 30 cm tégla falazat + 12 cm grafitos szigetelés
- Bramac beton cseréptető
- Háromrétegű thermo üvegezésű ablakok
- Kondenzációs gázkazán
- Padlófűtés
- 2 db inverteres klíma
- Laminált padló a lakóhelyiségekben
- Kerámia burkolat vizes helyiségekben
Az ingatlan műszaki tartalma modern, energia­takarékos, hosszú távon is értékálló megoldásokat biztosít.

Helyiséglista:
- Előtér: 10,8 m²
- Amerikai konyhás nappali: 35,7 m²
- Szobák: 12 m², 12,39 m², 10,26 m²
- Fürdő: 6,48 m²
- WC: 1,76 m²
- Gardrób: 9,14 m²
- Háztartási helyiség: 7,76 m²
- Közlekedő: 1,21 m²
- Terasz: 21 m²

Elhelyezkedés, környezet:
- Csendes, rendezett utca
- HÉV- és buszmegálló közelében
- Óvoda, iskola néhány perc
- Alsó park futókörrel és kültéri edzőparkkal a közelben
- Belváros 8 perc séta — üzletek, cukrászdák, piac, szolgáltatások
A lokáció kiváló, családbarát, könnyen elérhető környezet, teljes infrastruktúrával.

Ez az új építésű otthon ideális választás azoknak, akik:
- modern, praktikus, tágas új építésű házat keresnek
- rendezett környezetben élnének
- szeretnék saját igényeikre szabni új otthonukat
- előnyben részesítik a kis rezsit és energiahatékony megoldásokat
Az ingatlan rugalmas feltételekkel megtekinthető és lefoglalható.

Érdeklődés esetén szívesen állok rendelkezésre — egyeztessünk időpontot és beszéljünk a részletekről.

Datos de (tipo)

110 metro cuadrado

737 metro cuadrado

En construcción

Casa unifamiliar

Ladrillo

Caldera de gas

Gas

No está facilitado

Recién construido/a

no está facilitado

Planta baja

no está facilitado

Mapa